
At V-Tech we are unique in offering a FREE CAD service, whereby your vision can become a reality. With Our CAD service you will be able to literally visualise how your workshop will look with our MOT equipment in it.
How it works
We’ll visit your site and do a full site survey
This will help us to ensure that we have all the correct measurements of the space your working with, and gives us an opportunity to check things such as your electrical needs and any other additional services you may need alongside the supply of equipment.
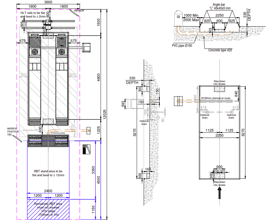
We’ll then use the information we have gathered to create an in-depth CAD drawing to clearly illustrate how your MOT Bay will look in your workshop with a clear detailed overview of what will be installed and more.
Once this is approved by you, we can then start to put some dates together as to when certain tasks are going to be started and completed such as ground works, electrics, VT01 applications, installations and more.